€
EUR
Biens Immobiliers
Développements
Contact
Nouvelles
More
Biens Immobiliers
Développements
Contact
Nouvelles
0
0
Appartement 1 Chambre(s)
Vila Nova de Gaia, Mafamude e Vilar do Paraíso, Gaia Centro
Retour
\
Appartement 1 Chambre(s) - Vila Nova de Gaia, Mafamude e Vilar do Paraíso, Gaia Centro
Partager Immeuble
Facebook
X
Pinterest
WhatsApp
Copie du lien
Link copiado
Imprimer la fiche
Envoyer la propriété à un ami
Insérer un nom
Insérer un email
Entrez une adresse email valide
Insérer un nom
Insérer un email
Entrez une adresse email valide
J´ai lu et accepte les termes et conditions énoncés.
Savoir plus »
Pour terminer cette opération, vous devez lire et accepter nos conditions.
Champs obligatoires *
Envoyer
Photos
Vidéos
Seguir imóvel
Seguir imóvel
Receba um alerta quando existir uma Baixa de Preço
Nom
Insira o seu Nome
E-mail
Entrez votre email
Entrez une adresse email valide
Li e aceito a
Politique de confidentialité
Pour terminer cette opération, vous devez lire et accepter nos conditions.
Insérer le code de l'image
Code
Envoyer
Appartement 1 Chambre(s), Vila Nova de Gaia, Mafamude e Vilar do Paraíso, Gaia Centro
215.000 €
Ref:
IMM-27-25-C74
1
1
1
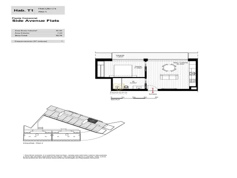
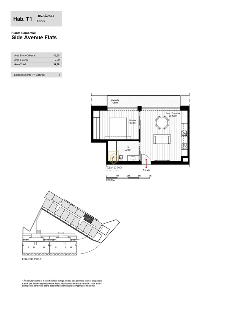
45,5 m²
52,7 m²
7,2 m²
Appartement T0 de Luxe à Vila Nova de Gaia avec 45.5 m² et un Balcon de 7.2 m²
Side Avenue : Le tout nouveau projet résidentiel situé sur l´avenue cosmopolite Avenida da República, à Gaia. Avec 136 appartements de types T0, T1 et T2, ce complexe distinct et exceptionnel offre une qualité de construction et des finitions inégalées, garantissant une expérience résidentielle véritablement exceptionnelle.
Imaginez vivre à seulement deux minutes à pied (200m) de la station de métro D. João II, avec un accès direct aux principales zones commerciales et de loisirs de la ville. Side Avenue offre une localisation centrale et pratique qui vous permettra de profiter pleinement du style de vie urbain, avec toutes les commodités à portée de main.
L´une de ses caractéristiques est sa grande place extérieure privée, un espace unique et accueillant où vous pourrez vous détendre, socialiser et profiter de moments de loisirs. De plus, le complexe dispose d´une zone de réception avec un portier de jour, vous offrant sécurité et commodité.
Si prendre soin de votre santé et de votre bien-être est important pour vous, la salle de sport entièrement équipée sera l´endroit idéal pour vous entraîner et rester en forme. Après un entraînement revigorant, vous pourrez profiter des salles spécialement conçues pour les thérapies et massages, équipées de tables et de meubles de soutien, où vous pourrez vous détendre et recharger vos batteries.
Au Side Avenue, nous avons pensé à tous les détails pour rendre votre vie plus confortable et pratique. Avec une laverie commune équipée de machines installées, prendre soin de vos vêtements n´a jamais été aussi facile. De plus, nous avons un espace dédié au stationnement des vélos dans le garage, encourageant un mode de vie sain et durable.
Et pour ceux qui sont toujours à la pointe de la technologie, Side Avenue offre une pré-installation pour un système de recharge pour voitures électriques. Ce développement innovant suit les dernières tendances et garantit que vous serez prêt pour l´avenir.
Avec toutes ces caractéristiques exceptionnelles et des conditions commerciales très attractives, Side Avenue est l´investissement immobilier de choix pour ceux qui recherchent le succès et la prospérité. Ne manquez pas l´opportunité de faire partie de ce nouveau concept résidentiel qui allie luxe, commodités et mode de vie moderne.
Planifiez une visite à Side Avenue dès aujourd´hui et découvrez comment ce projet unique peut transformer votre vie. Ne perdez pas de temps, car les unités sont rapidement acquises. Réservez dès maintenant votre place à Side Avenue et faites un pas vers votre avenir immobilier prospère.
Intéressé par cette propriété?
Date
Time
Nom
Insérer un nom
E-mail
Insérer un email
Entrez une adresse email valide
Contact
Entrez votre contact téléphonique
Message
Je demande plus d'informations, sans aucun engagement, à propos de la propriété IMM-27-25-C74
J´ai lu et accepte les termes et conditions énoncés.
Politique de confidentialité
Pour terminer cette opération, vous devez lire et accepter nos conditions.
Code
Insérez le code montré dans l'image.
Envoyer
Type de propriété
Appartement
Typologie
1 Chambre
Objectif
Vente
Etat
En Construction
Prix
215.000 €
Année de construction
N/D
Pays
Portugal
Département
Porto
Ville
Vila Nova de Gaia
Lieu
Mafamude e Vilar do Paraíso
Zone
Gaia Centro
Caractéristiques générales
Général
Pièces
Pièces
Lieu
Étage
Murs
Plafonds
Commentaires
Environnement
Commodités
Domotique
Energies Renouvelables
Voir aussi
Vendu
Vila Nova de Gaia, Mafamude e Vilar do Paraíso
295.000 €
Appartement 2 Chambre(s)
295.000 €
Appartement 2 Chambre(s)
Vila Nova de Gaia, Mafamude e Vilar do Paraíso
2
1
1
79 m²
A. Gross
65 m²
A. Brut Privé
65 m²
A. Utile
14 m²
A. Terrain
Contactar
Vila Nova de Gaia, Santa Marinha e São Pedro da Afurada, Gaia - Afurada
215.000 €
Appartement 0 Chambre(s)+1
215.000 €
Appartement 0 Chambre(s)+1
Vila Nova de Gaia, Santa Marinha e São Pedro da Afurada, Gaia - Afurada
1
44,5 m²
A. Gross
57,48 m²
A. Brut Privé
44,5 m²
A. Utile
12,98 m²
A. Terrain
Contactar
Vila Nova de Gaia, Santa Marinha e São Pedro da Afurada, Gaia - Afurada
230.000 €
Appartement 0 Chambre(s)+1
230.000 €
Appartement 0 Chambre(s)+1
Vila Nova de Gaia, Santa Marinha e São Pedro da Afurada, Gaia - Afurada
1
46 m²
A. Gross
46 m²
A. Brut Privé
46 m²
A. Utile
Contactar
Plus de propriétés +
Nous sommes à votre disposition pour vous aider
Je veux être contacté(e)
Date
Time
Nom
Insérer un nom
E-mail
Insérer un email
Entrez une adresse email valide
Contact
Insérez vos coordonnées
Message
Li e aceito a
Politique de confidentialité
Pour terminer cette opération, vous devez lire et accepter nos conditions.
Code
Insérez le code montré dans l'image.
Envoyer
O que é a pesquisa responsável
Esta pesquisa permite obter resultados mais ajustados à sua disponibilidade financeira.